| NIVEAU | PIÈCE | SURFACE |
- Ref 33053125
- Ref 162
- Type Appartement
- Ville PESSAC
- Pièces 3
- Chambres 2
- Surface 56 m²
- Terrain NC
- Prix :
172 000 € *
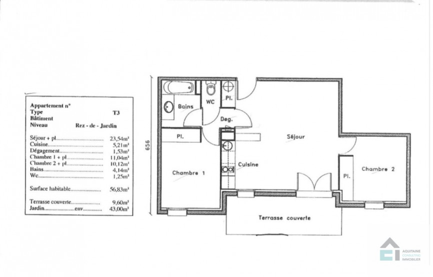
Situé au sein d'une résidence récente,sécurisée et bien entretenue, venez découvrir cet agréble appartement T3 de 56 M² environ en rez-de-jardin.
Il se compose d'une pièce de vie de 28 m² environ, de deux chambres avec placards, d'une salle de bains et d'un wc séparé.
Deux places de parkings viennent compléter ce bien.
Vendu loué 780 euros / mois.
Rentabilité brute 5,5%
A visiter sans tarderLes informations sur les risques auxquels ce bien est exposé sont disponibles sur le site Géorisques
Bien soumis au statut juridique de la copropriété. Nb de lot :160.
* Honoraires charge vendeur.
Ce bien ne figure plus au catalogue car il a été vendu.
Voir le descriptif des pièces
Diagnostic de
Performance énergétique
Contactez
Notre agence
Autour de ce bien :
Découvrez les écoles, hopitaux, commerces ... à proximité
- Bien
- 44.8019097
- -0.648850499988
- /images/ggmap-marker.png
- click
-
AppartementPESSAC - 56 m²
Découvrez nos biens similaires ...
ou
Envoyer
cette annonce à un ami
cette annonce à un ami
Votre E-mail a bien été envoyé.
Une erreur s'est produite lors de l'envoi de votre e-mail.
Veuillez réessayer à nouveau
Veuillez réessayer à nouveau












