| NIVEAU | PIÈCE | SURFACE |
- Ref 33053215
- Ref 265
- Type Appartement
- Ville PERPIGNAN
- Pièces 2
- Chambres 1
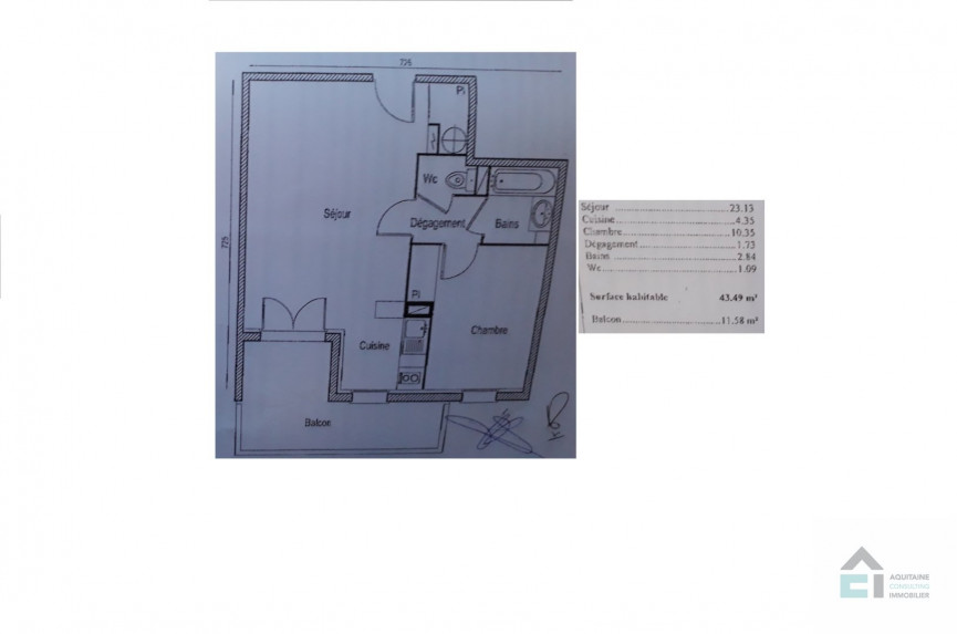
- Surface 43 m²
- Terrain NC
- Prix :
79 570 € *
*** APPARTEMENT LIBRE DE TOUTE OCCUPATION ***
Au Sud de Perpignan, proche gare et toutes commodités, venez découvrir ce bel appartement T2 dans une résidence sécurisée avec piscine au 2ème et dernier étage avec vue dégagée, exposé SUD-OUEST.
Il comprend un séjour avec un coin cuisine aménagé le tout d'environ 27m² et très lumunieux, une salle de bain, un wc séparé, une chambre avec placard.
Il offre aussi un balcon de plus de 11m² et une place de parking aérienne.
Taxe Foncière : 755€
Bien soumis au statut juridique de la copropriété. Nb de lot :160. Charges annuelles de copropriété (Montant moyen annuel quote-part du budget prévisionnel vendeur) : 1000.00 €.
* Honoraires charge vendeur.
Ce bien ne figure plus au catalogue car il a été vendu.
Diagnostic de
Performance énergétique
Contactez
Notre agence
Autour de ce bien :
Découvrez les écoles, hopitaux, commerces ... à proximité
- Bien
- 42.7015739
- 2.8941503
- /images/ggmap-marker.png
- click
-
AppartementPERPIGNAN - 43 m²
cette annonce à un ami
Veuillez réessayer à nouveau








