| NIVEAU | PIÈCE | SURFACE |
- Ref 33053262
- Ref 302
- Type Maison
- Ville LANGON
- Pièces 3
- Chambres 2
- Surface 66 m²
- Terrain NC
- Prix :
120 000 € *
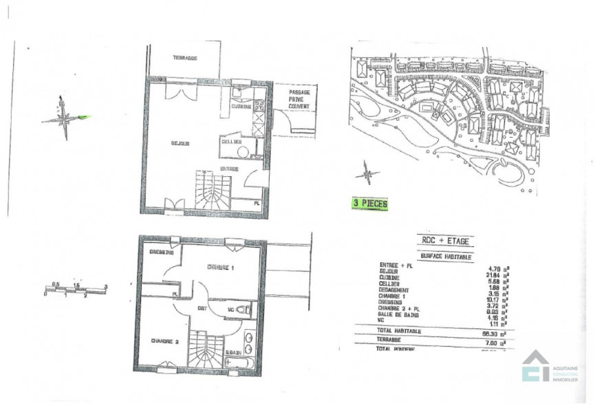
Dans une belle Résidence de 2005, calme, arborée proche des commodités, axe routiers, commerces, venez découvrir cette belle villa de type 3 d'environ 66 m² avec un beau jardin d'environ 70 m².
Elle est composée au rez-de-chaussé, d'une entrée avec un grand placard, un séjour donnant sur une cuisine ouverte aménagée avec un accés sur une terrasse et un beau jardin.
Au premier étage, vous disposez d'une chambre parentale avec un grand dressing d'environ 14 m² au total, une deuxième chambre avec placard, une salle de bains, et un WC séparé.
BIEN LIBRE DE TOUTE OCCUPATION AU 01/09/2021 MAXIMUM
Taxe foncière : 535 euros
Bien soumis au statut juridique de la copropriété. Nb de lot :220. Charges annuelles de copropriété (Montant moyen annuel quote-part du budget prévisionnel vendeur) : 1120.00 €.
* Honoraires charge vendeur.
Ce bien ne figure plus au catalogue car il a été vendu.
Diagnostic de
Performance énergétique
Contactez
Notre agence
Autour de ce bien :
Découvrez les écoles, hopitaux, commerces ... à proximité
- Bien
- 44.5566702
- -0.249224399982
- /images/ggmap-marker.png
- click
-
MaisonLANGON - 66 m²
cette annonce à un ami
Veuillez réessayer à nouveau
















