| NIVEAU | PIÈCE | SURFACE | 
- Ref 33053305
- Ref 353
- Type Appartement
- Ville SAINT QUENTIN DE BARON
- Pièces 2
- Chambres 1
- Surface 34 m²
- Terrain NC
- Prix :
 54 000 € *
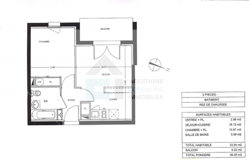
A SAINT QUENTIN DE BARON, à deux pas du centre du village, venez découvrir ce bel appartement T2 d'environ 34 m² au rez-de-chaussé, d'une résidence calme, sécurisée avec piscine et gardien.
Cet appartement est très lumineux, exposition OUEST, dispose d'une entrée avec placard, d'un séjour / cuisine donnant sur un balcon de plus de 5 m².
De plus, une chambre avec placard et une salle de bains avec wc viennent compléter ce bien.
VENDU LOUE 357 € avec charges
Taxe foncière : 380 euros 
*** IDEAL INVESTISSEUR OU PRIMO ACCEDANT ***
Bien soumis au statut juridique de la copropriété. Nb de lot :124. Charges annuelles de copropriété (Montant moyen annuel quote-part du budget prévisionnel vendeur) : 1000.00 €. 
* Honoraires charge vendeur.
Ce bien ne figure plus au catalogue car il a été vendu.
                  Diagnostic de
                  Performance énergétique
               
                   
                   
            
            
            
         
               Contactez
               Notre agence
            
         
         
         
            
            Autour de ce bien :
Découvrez les écoles, hopitaux, commerces ... à proximité
- Bien
- 44.8173074
- -0.285400199951
- /images/ggmap-marker.png
- click
- 
                     AppartementSAINT QUENTIN DE BARON - 34 m²
cette annonce à un ami
Veuillez réessayer à nouveau
 
				





