| NIVEAU | PIÈCE | SURFACE | 
- Ref 33053366
 - Ref 401
 - Type Appartement
 - Ville ARTIGUES PRES BORDEAUX
 - Pièces 3
 - Chambres 2
 - Surface 70 m²
 - Terrain NC
 - Prix :
228 000 € * 
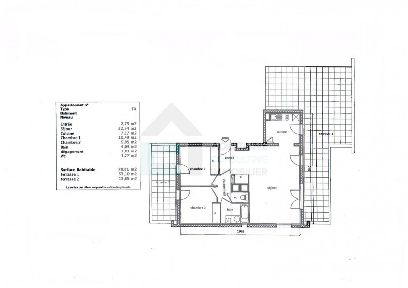
Dans une résidence récente et sécurisée à Artigues Près Bordeaux venez découvrir ce très bel appartement de 70m2 environ comprenant une entrée spacieuse avec placard donnant sur une pièce de vie avec sa cuisine ouverte d'environ 35m². Le séjour donne sur une première terrasse de 53m² environ sans vis à vis.
Pour le coin nuit, il dispose de deux chambres avec chacune un rangement et accès sur un second balcon, un wc séparé et une salle de bains.
Deux places de parking extérieures viennent compléter le bien.
Le bien est loué actuellement 773 euros charges comprises (692 loyer+ 67,00 charges + 14,00 TOM) / mois ou VENDU LIBRE le 4 Novembre 2022. 
Taxe foncière 2021 : 981 €
Bien soumis au statut juridique de la copropriété. Nb de lot :104. Charges annuelles de copropriété (Montant moyen annuel quote-part du budget prévisionnel vendeur) : 1350.00 €. 
* Honoraires charge vendeur.
Ce bien ne figure plus au catalogue car il a été vendu.
                  Diagnostic de
                  Performance énergétique
               
                  
                  
            
            
            
         
               Contactez
               Notre agence
            
         
         
         
            
            Autour de ce bien :
Découvrez les écoles, hopitaux, commerces ... à proximité
- Bien
 - 44.8575408
 - -0.495328199944
 - /images/ggmap-marker.png
 - click
 - 
                     AppartementARTIGUES PRES BORDEAUX - 70 m²
 
cette annonce à un ami
Veuillez réessayer à nouveau
				



















