| NIVEAU | PIÈCE | SURFACE |
- Ref 33053855
- Ref 784
- Type Appartement
- Ville POUSSAN
- Pièces 3
- Chambres 2
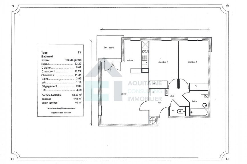
- Surface 63 m²
- Terrain 65 m²
- Prix :
173 500 € *
****** IDEAL INVESTISSEUR ******
Idéalement situé, à POUSSAN, à seulement 40 minutes de Montpellier et à proximité des plages venez découvrir ce charmant appartement T3 d'environ 64 m² au sein d'une copropriété calme et bien entretenue.
L’appartement se compose d’un espace de vie lumineux avec séjour et cuisine ouverte,donnant sur une agréable terrasse avec jardin privatif d’environ 65 m².
Il dispose également de deux chambres avec placards d'environ 11 et 12 m² ainsi qu'une salle de bains et un WC séparé.
Une place de stationnement privative complète ce bien.
Ce bien est vendu LOUÉ : 624.71 € de loyer HC + 126.00 € de provisions/charges.
Locataires agés de plus de 65 ans.
Taxe foncière : 1 008.00 € dont 210 € de TEOM.
***Pour toutes visites, veuillez contacter Monsieur Fabien PENE au 06 78 30 59 89***
Bien soumis au statut juridique de la copropriété. Nb de lot :64. Charges annuelles de copropriété (Montant moyen annuel quote-part du budget prévisionnel vendeur) : 1740.00 €.
* Honoraires charge vendeur.
Diagnostic de
Performance énergétique

Montant estimé des dépenses annuelles d'énergie pour un usage standard: entre 400,00€ et 600,00€ par an.Prix moyens des énergies indexés sur les années 2021, 2022 et 2023 (abonnement compris)
Contactez
Notre agence
Autour de ce bien :
Découvrez les écoles, hopitaux, commerces ... à proximité
- Bien
- 43.4871785341
- 3.67346763611
- /images/ggmap-marker.png
- click
-
AppartementPOUSSAN - 63 m²
cette annonce à un ami
Veuillez réessayer à nouveau






