| NIVEAU | PIÈCE | SURFACE |
- Ref 33053857
- Ref 780
- Type Appartement
- Ville TOULOUSE
- Pièces 2
- Chambres NC
- Surface 41 m²
- Terrain NC
- Prix :
99 000 € *
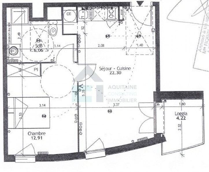
A TOULOUSE, secteur Croix Daurade (31200), proche boulevard ATLANTA, de toutes commodités et accès périphérique, dans une belle résidence récente, calme et sécurisée.
Venez découvrir ce bel appartement T2 d'environ 41 m² au premier étage sur trois, exposé SUD-EST.
Il est composé d'une entrée donnant sur un séjour lumineux avec une cuisine ouverte aménagée ainsi qu'un balcon d'environ 4 m².
De plus, vous disposez d'une bel le chambre séparée avec placard et d'une grande salle d'eau avec WC.
Ce bien est vendu avec une place de parking en sous-sol privative et sécurisée
Loué 510 € H.C. + 50 € de charges récupérables
Date de fin de bail 12/05/2026
Taxe foncières : 931 €
Bien soumis au statut juridique de la copropriété. Nb de lot :73. Charges annuelles de copropriété (Montant moyen annuel quote-part du budget prévisionnel vendeur) : 800.00 €.
* Honoraires charge vendeur.
Diagnostic de
Performance énergétique

Montant estimé des dépenses annuelles d'énergie pour un usage standard: entre 451,00€ et 611,00€ par an.
Prix moyen des énergies indexés au 01/01/2021 (abonnement compris)
Contactez
Notre agence
Autour de ce bien :
Découvrez les écoles, hopitaux, commerces ... à proximité
- Bien
- 43.6384511565
- 1.47073030471
- /images/ggmap-marker.png
- click
-
AppartementTOULOUSE - 41 m²
cette annonce à un ami
Veuillez réessayer à nouveau


















