| NIVEAU | PIÈCE | SURFACE |
- Ref 33053881
- Ref 806
- Type Appartement
- Ville SAINT ESTEVE
- Pièces 3
- Chambres 2
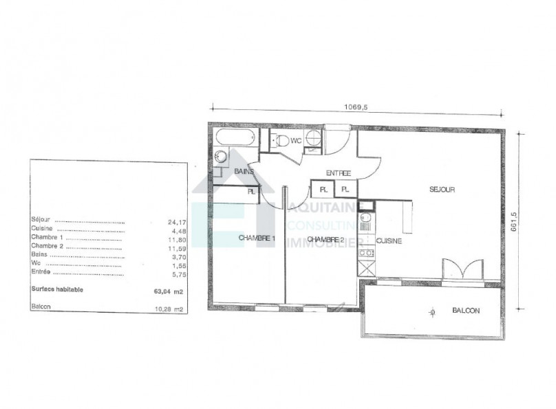
- Surface 63 m²
- Terrain 52 m²
- Prix :
130 000 € *
Situé à SAINT ESTEVE, proche de toutes les commodités, venez découvrir ce bel appartement libre de toute occupation au 1er étage d'une résidence calme et securisée avec piscine.
Il est composé d'une entrée, d'un séjour avec cuisine donnant sur un balcon d'environ 10 m² exposée Sud.
Il dispose de deux chambres avec placard, d'une salle de bain et d'un wc séparé.
Une place de parking couverte privative et sécurisée vient compléter ce bien.
Signature Acte Authentique possible le 24/03/2026.
Taxe foncière : 1 201 €
** A voir sans plus tarder - AGENCE AQUITAINE CONSULTING IMMOBILIER, pour plus de renseignements **
Bien soumis au statut juridique de la copropriété. Nb de lot :316. Charges annuelles de copropriété (Montant moyen annuel quote-part du budget prévisionnel vendeur) : 1260.00 €.
* Honoraires charge vendeur.
Diagnostic de
Performance énergétique

Montant estimé des dépenses annuelles d'énergie pour un usage standard: entre 791,00€ et 1 071,00€ par an.Prix moyens des énergies indexés sur les années 2022, 2023 et 2024 (abonnement compris)
Contactez
Notre agence
Autour de ce bien :
Découvrez les écoles, hopitaux, commerces ... à proximité
- Bien
- 42.7164181
- 2.842751
- /images/ggmap-marker.png
- click
-
AppartementSAINT ESTEVE - 63 m²
cette annonce à un ami
Veuillez réessayer à nouveau
















