| NIVEAU | PIÈCE | SURFACE |
- Ref 33053914
- Ref 842
- Type Appartement
- Ville AMBES
- Pièces 2
- Chambres 1
- Surface 41 m²
- Terrain NC
- Prix :
81 750 € *
*** RAVALEMENT FACADE VOTE - PAYE PAR LES VENDEURS *** LIBRE DE TOUTE OCCUPATION ***
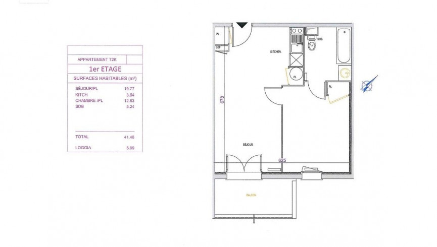
Situé à AMBES, dans une Résidence récente de 2012, idéalement situé, à proximité ecole, centre ville, transports, venez découvrir ce bel appartement T2 d'environ 42 m² au 1er étage sur 2 LUMINEUX exposé SUD-EST avec BALCON ET?PARKING.
Il est composé d'une entrée avec placard, ouvert sur un séjour/cuisine le tout donnant sur un balcon d'environ 6m².
Il dispose d'une chambre avec placard et d'une salle de bains avec WC,
Ravalement voté et payé !!!
Taxe foncière : 655 €
Une place de parking privative extérieur vient compléter ce bien.
VENDU LIBRE DE TOUTE OCCUPATION
Bien soumis au statut juridique de la copropriété. Nb de lot :90. Charges annuelles de copropriété (Montant moyen annuel quote-part du budget prévisionnel vendeur) : 850.00 €.
* Honoraires charge vendeur.
Diagnostic de
Performance énergétique

Montant estimé des dépenses annuelles d'énergie pour un usage standard: entre 250,00€ et 500,00€ par an.Prix moyens des énergies indexés sur les années 2021, 2022 et 2023 (abonnement compris)
Contactez
Notre agence
Autour de ce bien :
Découvrez les écoles, hopitaux, commerces ... à proximité
- Bien
- 45.0080756
- -0.535409899956
- /images/ggmap-marker.png
- click
-
AppartementAMBES - 41 m²
cette annonce à un ami
Veuillez réessayer à nouveau








